MAKE AN APPOINTMENT TO VISIT OUR MODELS
Minnesota

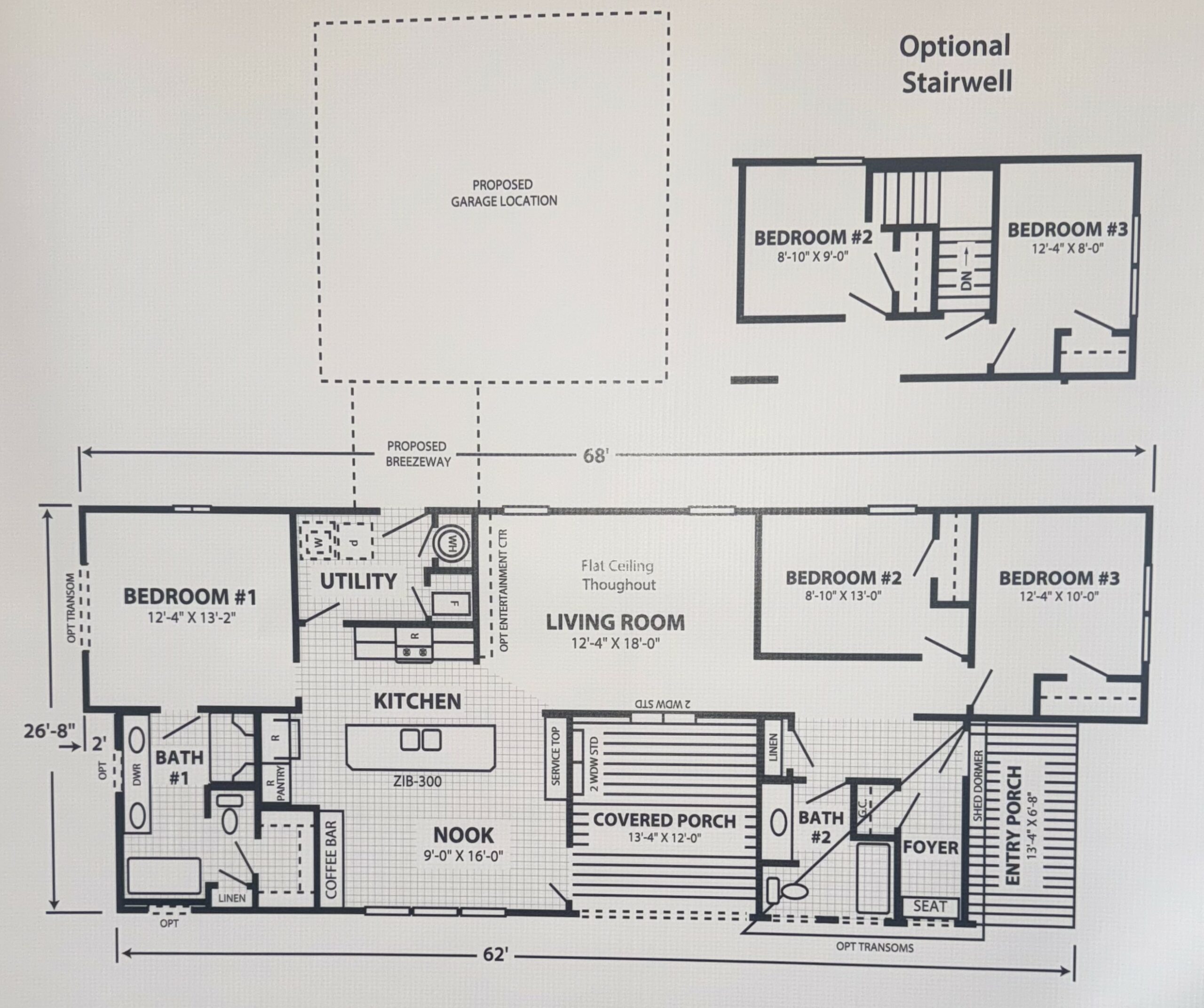
The Minnesota Series

Cozy yet, ultra modern design that is breaking edge technology. This floorplan & design comes in both Manufactured Homes & Modular floorplans. Built in porches, open concept & many more options in this prototype.

Standards and Features

Interior
Smooth Drywall Throughout
Flat Ceiling Throughout
Stipple Ceiling
Coveless Ceiling Joints
8’ Sidewall Height
Recessed LED Lighting
Mortise Door Hinges
Metal Interior Passage Sets
Door Stops
White 2 1/4” Door & Window Casing
White 3” Baseboard Moulding
White 2-Panel Doors
Smoke Detectors with Battery Back-Up
Wire Shelving in Guest Closet
Brushed Nickel Interior Hardware

Exterior
Gatsby Light at Front Door
Gatsby Light at Rear Door
GFI-Protected Exterior Receptacles at Doors
Vinyl Dutch Lap Siding with Larger
Starter Strip to Cover Sill Plate
O.S.B. Sheathing
Fixed Roof with 10” Eaves (26’8” & 30’)
16” Eaves (27’4”)
Architectural Shingles
Ridgevent Roof Ventilation System
3/0x6/8 6-Panel Fiberglass Front and Rear
Door with Deadbolt Lock
Heritage Vinyl Insulated Low-E Argon
Windows with no grids
Raised Panel Shutters on Front Door Side

Construction
2x10 Floor Joists 16” on Center**
2x6 Exterior Walls 16” on Center**
2x4 Interior Walls
40# Roof Load

Kitchen
Whirlpool Black Deluxe 30” Gas
Free Standing Range
Power Range Hood with Light
Whirlpool Black 18 Cubic Foot,
No-Frost Refrigerator w/ Icemaker
Stainless Steel Double Bowl Sink (33x22x8)
One USB Receptacle

Baths
One Piece Fiberglass Tub/Showers
Garden Tub/Shower-Master Bathroom
Tub Overflows
Anti-Scald Valves on Showers & Tubs
1.6 Gallon Per Flush Elongated Toilets
China Stool, Tank, and Lid
China Sinks with Overflows and Pop-Up
Drains
Lighted Vent Fan in Each Bath
Recessed LED Lighting
Pencil Edge Mirrors

Cabinetry
Hardwood Stiles
3/4 Overlay Hardwood Mission Flat
Panel Cabinet Doors
Evermore Custom Cabinetry
Crown Moulding on Overhead Cabinets
Cabinet Pull Hardware
30”/42” Staggered Wall Overhead Cabinets
or 42” Overhead Cabinets
Matching Lined Overhead Cabinets
Adjustable Shelves in Overhead Cabinets
Dovetail Drawer Construction
75#Drawer Guides
Base and Center Shelf in Base Cabinets
WilsonArt Laminate Countertops with
Laminate Edging
4” WilsonArt Laminate Backsplash
36” High Vanities
Base Shelf in Vanities
Bump-out Staggered Wall Cabinet over Range
Refrigerator Surround

Bedrooms
Recessed LED Lighting
Egress Window in Each Bedroom
Wire Shelving in Wardrobes
LED Light in All Walk-In Closets

Flooring
SHAW 15 oz. Carpet w/ ShawGuard
Carpet Protector
Rebond Carpet Pad with Tackstrip
Carpet Installation
No-Wax Vinyl Floor Coverings
Entry Foyer Vinyl Flooring

Utilities
200 AMP Electrical Service
Copper Wiring Throughout
Bryant Gas Furnace w/ N Coil
- Perimeter Heat
- Furnace Door
- Fiberglass Heat Ducts
- Air Return System
Programmable Thermostat
40 Gallon Electric Water Heater with Pan
Structured Flow Brushed Nickel Faucets
Main Water Line Shut-Off Valve
Water Shut-Off Valves - Where Accessible
Plumb and Wire for Washer
Wire and Vent for Dryer
One Exterior Water Faucet
Recessed Dryer Box (where applicable)

Insulation
R-19 Fiberglass Insulation in Walls
R-38 Avg. Blown Insulation in Ceiling